Beschreibung
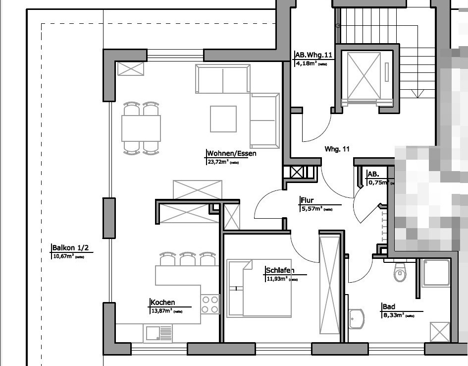
Penthousewohnung in einem enegieeffizient gebauten Mehrfamilienhaus (KfW70) mit großzügiger Dachterrasse. Moderner, offener gestalteter Grundriss mit Wohn/Esszimmer, offene Küche, Dachterrasse zum Südwesten, Flur, Schlafzimmer, Abstellraum, stufenloses Duschbad mit WC und Waschmaschinenanschluss. Ein zusätzlicher Abstellraum gehört zur Wohnung. Ein Garagenstellplatz ist monatlich für 70 € anzumieten. Im Keller steht Ihnen ein zusätzlicher gemeinschaftlicher Raum zum Abstellen von Fahrrädern und Laden des E-Bikes zur Verfügung.
In traumhafter Lage von Rheine l. d. Ems, direkt am Emsufer, schön eingewachsen, mit Blick auf die Ems und auf das angrenzende grüne Umfeld. Absolut ruhig und trotzdem ausgesprochen zentral ohne jeglichen Durchgangsverkehr. Nur 2 Gehminuten am Emsufer entlang bis zur Fußgängerzone. Rheine an der Ems ist mit mehr als 76.000 Bewohnern die größte Stadt im Kreis Steinfurt. Die Ems durchfließt die Stadt von Süden nach Norden und lädt zu vielen Aktivitäten ein. Ob mit dem Rad, zu Fuß, oder dem Kanu – nutzen Sie die vielfältigen Möglichkeiten! Beliebtes Freizeitziel ist der NaturZoo Rheine, in unmittelbarer Nähe zur Saline Gottesgabe und dem Kloster Bentlage. In Rheine ist immer etwas los – ob Feste oder Feiern, Kunst und Kultur, Ferien oder Freizeit. Das abwechslungsreiche Angebot an Geschäften sowie attraktive Märkte machen die Innenstadt zu einem echten Einkaufserlebnis. Außerdem zeichnet sich Rheine durch eine hervorragende Verkehrsanbindung aus. Die Stadt ist an eine Vielzahl regionaler und überregionaler Verkehrsnetze angebunden. Die Autobahn A 30 stellt eine schnelle Verbindung zur A 31 und zur A 1 her, Osnabrück und die Niederlande sind jeweils nur eine halbe Autostunde entfernt.
+ Aufzug
+ Fußbodenheizung
+ Solargestützte Warmwasserbereitung
+ Dreifachverglasung
+ Wohn-Esszimmer und Schlafzimmer mit Design Bodenbelag
+ Küche und Bad mit Fliesenbelag
+ Außenrollladen
+ Sat.-Anlage
+ Für die Treppenhausreinigung, Gartenunterhaltung und den Winterdienst etc. wird gesorgt
+ Die Stromkosten sind nicht in den Nebenkosten enthalten
+ Die Einbauküche kann von den derzeitigen Mietern abgekauft werden
+ Der Energieausweis befindet sich in Bearbeitung
Das Mietverhältnis wird von Seiten des Vermieters für mindestens 2 Jahre gewünscht. Die Haltung von Haustieren ist nicht erwünscht.
Bei Mietvertragsabschluss wird ein Indexmietvertrag vereinbart.
Bitte haben Sie Verständnis, dass wir aufgrund der Nachweispflicht gegenüber dem Eigentümer und gesetzlicher Bestimmungen (Geldwäschegesetz) nur Anfragen mit vollständiger Nennung Ihres Namens, Ihrer Anschrift und einer Rückrufmöglichkeit bearbeiten können. Nachdem Sie uns Ihre Daten bekannt gegeben haben, übersenden wir Ihnen gerne ein Exposé oder vereinbaren mit Ihnen einen Besichtigungstermin.