• Beschreibung
  • Adresse
  • Einzelheiten
  • Grundriss

Beschreibung

Zum Verkauf steht eine Scheune in Emsdetten-Hembergen auf einem über 1.100m² großem Grundstück. Die Scheune kann zu einem modernen Einfamilienhaus umgebaut werden. Eine positive Bauvoranfrage der Stadt liegt bereits vor, sodass die grundsätzliche Umsetzbarkeit bereits bestätigt ist.

Insgesamt sind ca. 170 m² Wohnfläche realisierbar und bieten damit ideale Voraussetzungen für ein großzügiges Wohnen in einem Haus mit historischem Charakter. Ein Grundrisskonzept wurde mit der Bauvoranfrage bereits eingereicht. Im Erdgeschoss befindet sich hierbei ein komfortabler Wohnbereich mit Zugang zur Terrasse und einer angeschlossenen Küche inklusive Esszimmer. Zudem findet man hier ein separates Gäste-WC, sowie einen geräumigen Hauswirtschaftsraum.

Im Obergeschoss lassen sich mindestens drei Schlafzimmer und ein geräumiges Badezimmer erstellen. Somit bietet die Immobilie auch für die Familie mit mindestens einem Kind ausreichend Fläche. Die genaue Umsetzung muss im Rahmen des Baugenehmigungsverfahrens nach dem Kauf mit der Stadt Emsdetten besprochen werden.

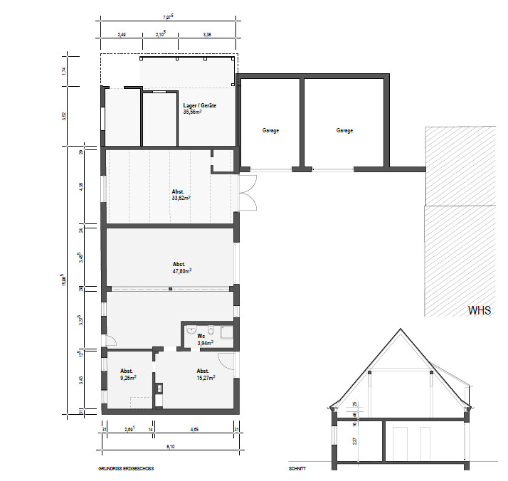
Zum Angebot gehört ebenfalls eine eigene Garage und weitere Abstellmöglichkeiten in einem ca. 35 m² großen Anbau. Dieses Objekt richtet sich an Käufer, die etwas „Besonderes“ suchen und sich mit Kreativität ein Unikat erschaffen möchten. Die Scheune bietet eine seltene Möglichkeit modernen Wohnraum mit besonderem Charme zu entwickeln. Zusätzlich bietet das sehr großzügige Grundstück einen passenden Rahmen für dieses ehemalige landwirtschaftliche Gebäude.

Das Haus befindet sich im Stadtteil Hembergen in ruhiger Lage. Emsdetten-Hembergen verbindet ländliche Ruhe mit einer angenehmen Nähe zur Innenstadt von Emsdetten. Der charmante Ortsteil überzeugt durch seine naturnahe Umgebung, gewachsene Nachbarschaften und eine hohe Wohnqualität. Wer ein ruhiges und familienfreundliches Wohnumfeld mit guter Anbindung schätzt, findet in Hembergen einen besonders attraktiven Lebensmittelpunkt.

Emsdetten mit ca. 36.000 Einwohnern, im Herzen des Kreises Steinfurt gelegen, erfreut sich immer größerer Beliebtheit. Der Stadtkern bietet mit seinen attraktiven Einkaufsmöglichkeiten und den zwei Markttagen ein reizvolles Flair. Neben einem Kino verfügt die Stadt auch über eine belebte Gastronomie. Die EMS-HALLE, eine der größten Veranstaltungshallen der Region ist regelmäßig Bühne für Top-Veranstaltungen aus Musik, Theater, Sport und Comedy. Genießen Sie per Rad, Pferd, oder zu Fuß die unberührte Natur im Emsdettener Venn. Die Ems mit den Emsauen ist eine gute Basis für eine Kanutour. Außerdem zeichnet sich Emsdetten durch eine hervorragende Verkehrsanbindung aus. Die Universitätsstadt Münster und die Stadt Rheine liegen in unmittelbarer Nähe, mit der Deutschen Bahn sind Sie schnell am Ziel. Auch die Städte Osnabrück und Enschede sind durch die verkehrsgünstige Lage schnell erreicht. Zum internationalen Flughafen Münster/Osnabrück brauchen Sie nur ca. 15 Autominuten.

Landwirtschaftliche Scheune aus dem Baujahr 1905:
+ Witterungsbeständige Klinkerfassade
+ Positive Bauvoranfrage zur Umnutzung in Wohnraum
+ ca. 170 m² Wohnfläche möglich
+ Zusätzlich eine Garage und 35 m² Anbau für Fahrräder und Gartengeräte
+ Über 1.100 m² Grundstück
+ Terrasse mit Westausrichtung möglich
+ Badezimmer & separates Gäste-WC möglich
+ Großzügiger HWR
+ 3 separate Schlafräume möglich

Ein spannendes Projekt, um sich den Traum von den eigenen vier Wänden zu erfüllen. Die Bauvoranfrage liefet die Rahmenbedingungen, die detaillierte Umsetzung ist im Zuge einer Baugenehmigung mit der Stadt Emsdetten abzustimmen.

Der Verkäufer wünscht, dass der Käufer die Hälfte der vereinbarten Provision übernimmt. Somit ist für den Käufer bei Vertragsabschluss eine Maklerprovision von 2,975% (inkl. UST) des beurkundeten Kaufpreises fällig. Diese Vereinbarung wird auch in den notariellen Kaufvertrag übernommen. Auf Wunsch der Eigentümer bitten wir von der direkten Kontaktaufnahme abzusehen und Unterlagen zum Haus sowie Besichtigungstermine nur über uns, Matzker Immobilien, anzufordern.

Bitte haben Sie Verständnis, dass wir aufgrund der Nachweispflicht gegenüber dem Eigentümer und gesetzlicher Bestimmungen (Geldwäschegesetz) nur Anfragen mit vollständiger Nennung Ihres Namens, Ihrer Anschrift und einer Rückrufmöglichkeit bearbeiten können. Nachdem Sie uns Ihre Daten bekannt gegeben haben, übersenden wir Ihnen gerne ein Exposé oder vereinbaren mit Ihnen einen Besichtigungstermin.

Adresse

  • Stadt: Emsdetten / Hembergen
  • Postleitzahl: 48282
  • Land: Deutschland

Details

  • Immobilien-ID: 3883
  • Preis: 270.000€
  • Wohnfläche: 167 m²
  • Grundstücksfläche: 1129 m²
  • Zimmer: 5
  • Schlafzimmer: 3
  • Badezimmer: 1
  • Garage Größe: 1 Autostellplatz
  • Baujahr: 1905
  • Typ: Einfamilienhaus
  • Status: zu verkaufen

  • Käuferprovision: 2,975%
  • Anzahl Garagenstellplätze: 1
  • Wohnfläche: 167,91 m²
  • Nutzfläche: 53 m²
  • Separate WCs: 1
  • Anzahl Stellplätze: 1
  • Immobilie ist verfügbar ab: nach Absprache

Grundriss - aktuell

Floor Plan

Grundriss - Entwurf EG

Floor Plan

Grundriss - Entwurf OG

Floor Plan

Kontaktinformation

Leon Gleim
Leon Gleim
02572-917300

Kontakt

Ich habe die Hinweise zum Datenschutz gelesen und akzeptiere diese. Ich erkläre mich damit einverstanden, dass ich telefonisch/per E-Mail kontaktiert werde.